PC Permanent Kryds Samler, Metrisk
Fitting ends
| # | Endetype | Endeform | Gevind | Tætning |
|---|---|---|---|---|
| 1 | Phastite - Process Svejse Alternativ | Han | ||
| 2 | Phastite - Process Svejse Alternativ | Han | ||
| 3 | Phastite - Process Svejse Alternativ | Han | ||
| 4 | Phastite - Process Svejse Alternativ | Han |
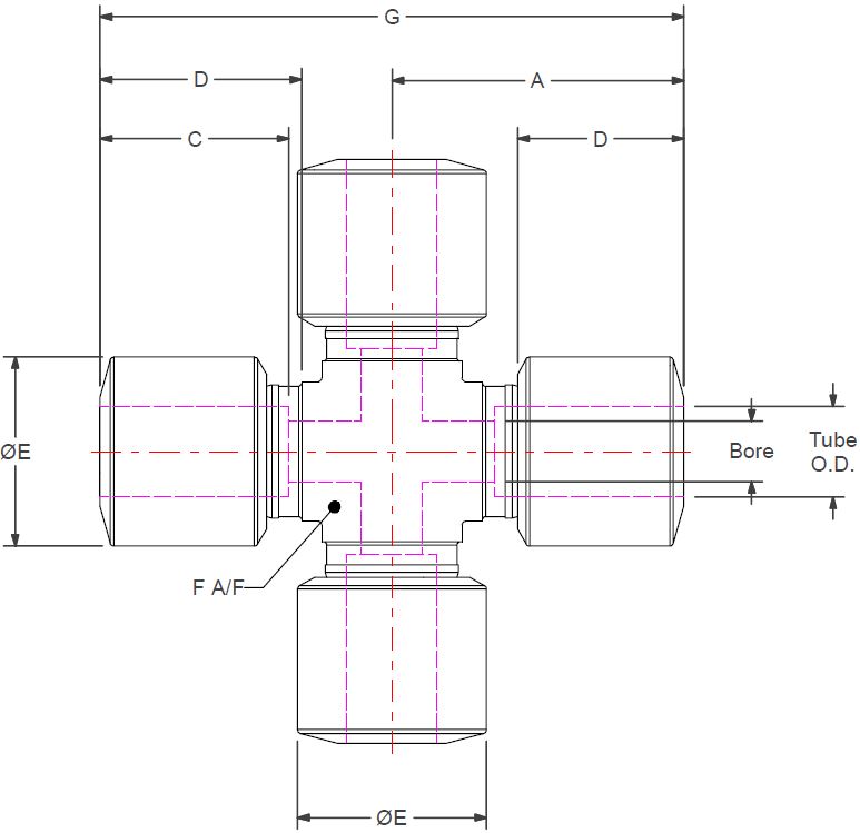
Fitting data
| Form | Kryds |
|---|
| Samlingskombination | Rør-til-Rør |
|---|---|
| Produktklassifisering | Proces |
| Produktkategori | Fittings |
| Produktgruppe | Process Fittings |
| Produktprogram | Phastite - Presse Fittings |
| Produktunderprogram | Phastite |
| Info | Hymatik varenr. | Leverandør varenr. |
Alok Fitting Option
|
Product Category
|
Tube OD
|
A (mm)
|
A Inches
|
B (mm)
|
B Inches
|
C (mm)
|
C Inches
|
D (mm)
|
D Inches
|
E (mm)
|
E Inches
|
F (mm)
|
F Inches
|
G (mm)
|
G Inches
|
Bore (mm)
|
Bore Inches
|
Enhedspris | Favorit | Sort Order | ||
|---|---|---|---|---|---|---|---|---|---|---|---|---|---|---|---|---|---|---|---|---|---|---|---|---|---|---|